Leitsystem und Raumbeschriftung Werk Kesselbach

AUGUST MANSER AG

Leitsystem / Kozeption und Design | Kunde: AUGUST MANSER AG | © WERBE&form, Werbeagentur in Vorarlberg

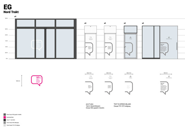
Das Projekt: für den anspruchsvollen Neubau ein Leitsystem entwickeln. Von der Besichtigung des Rohbaus bis zur konzeptionellen Aufarbeitung des Nutzerverhaltens im Objekt, entstand ein einfaches, funktionales und ansprechendes Leitsystem. Die eigens gestalteten Icons wurden großflächig eingesetzt. So werden z.B. beim Empfang, sowie bei den Eingägen zu den Besprechungsräumen die Besucher mit freundlichen Kurzgeschichten begrüßt und ein durchdachtes Leitsystem führt durch das gesamte Objekt. Vom Bürotrakt, über die Fertigungshallen bis in die Kellerräume.

Leitsystem / Kozeption und Design | Kunde: AUGUST MANSER AG | © WERBE&form, Werbeagentur in Vorarlberg
Leitsystem / Kozeption und Design | Kunde: AUGUST MANSER AG | © WERBE&form, Werbeagentur in Vorarlberg
Leitsystem / Kozeption und Design | Kunde: AUGUST MANSER AG | © WERBE&form, Werbeagentur in Vorarlberg
Leitsystem / Kozeption und Design | Kunde: AUGUST MANSER AG | © WERBE&form, Werbeagentur in Vorarlberg